Canal de l’Ourcq
Canal de l’Ourcq

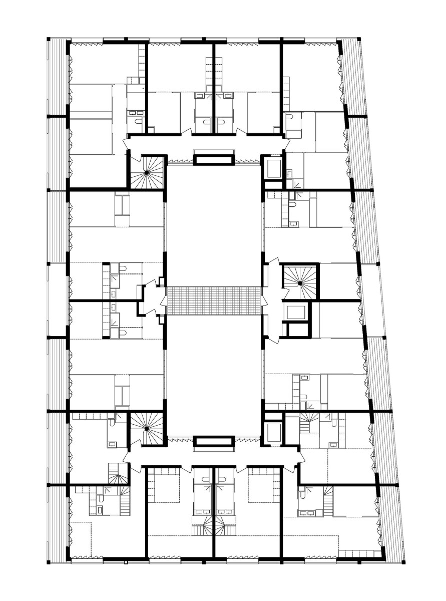
Pantin Building with Courtyard

Over recent years, the Ourcq canal has become a trendy meeting place in Paris and Pantin (Seine-Saint-Denis). Built in the 19th century to provide Paris with drinking water, it is currently considered to be the "Champs-Élysées of Greater Paris".

Read more

Pantin Building with Courtyard

Over recent years, the Ourcq canal has become a trendy meeting place in Paris and Pantin (Seine-Saint-Denis). Built in the 19th century to provide Paris with drinking water, it is currently considered to be the "Champs-Élysées of Greater Paris".

The Ourcq canal, docks, and the Pantin General Stores define the development’s environment, making it a site with character. To embrace the spirit of the place, which is typified by heavy-duty raw-looking industrial buildings, the development was given a simple, massive volumetry that challenges the construction’s purpose. 

Clad in glass and steel, this ‘clarity building’ dialogues with its industrial environment and draws out the site’s port history. Inside the building, the apartments are set around an inner courtyard. This ‘constructed form’ provides continuity with the heavy-duty buildings lining the canal, while also making the apartments dual aspect. 

The regular structure creates cube-shaped volumes, giving the apartments total freedom in terms of lay-out. The apartments are sold in an unfinished state, with no partition walls or interior finishing. Two porches lead into the planted courtyard, where the building’s entrance is located.

Light become the main author of the setting as it projects the surrounding colours and reflections of the water onto each facade.

Location

Pantin (93)

Date

2016

Development

55 appartments

Surface area

4 911 sq. m

Budget

€8 000 000 Excluding tax

Client

Nexity Apollonia

01_canal-de-l-ourcq
02_canal-de-l-ourcq
03_canal-de-l-ourcq
04_canal-de-l-ourcq
05_canal-de-l-ourcq
06_canal-de-l-ourcq
07_canal-de-l-ourcq
08_canal-de-l-ourcq
09_canal-de-l-ourcq
10_canal-de-l-ourcq
11_canal-de-l-ourcq
12_canal-de-l-ourcq
13_canal-de-l-ourcq
14_canal-de-l-ourcq