Chapelle Charbon
Chapelle Charbon

"A neighbourhood bordering a large park" Paris

Located between Porte de la Chapelle and Porte d’Aubervilliers in Paris, the Chapelle Charbon urban development zone has transformed a former rail logistics site in the 18th district of Paris into a large park bounded by residential housing, putting the finishing touch to the Évangile district.

Read more

"A neighbourhood bordering a large park" Paris

Located between Porte de la Chapelle and Porte d’Aubervilliers in Paris, the Chapelle Charbon urban development zone has transformed a former rail logistics site in the 18th district of Paris into a large park bounded by residential housing, putting the finishing touch to the Évangile district.

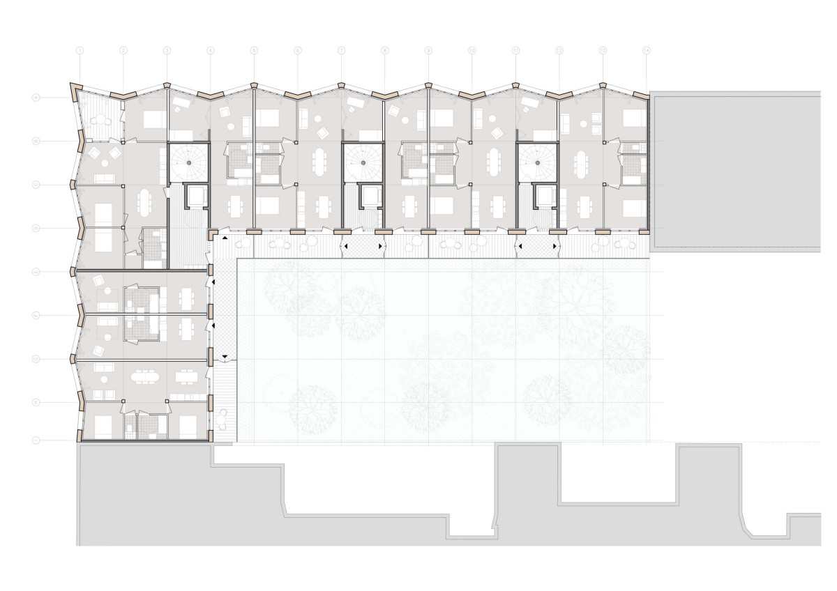
Our new building was built flush against existing buildings in the zone to leave room for a communal garden in its centre. The building is part of a larger ‘piece of the city’ which creates a neighbourhood facing onto the park. A desire to break with the existing urban setting, which consists of ‘housing developments, was a crucial challenge for the site’s image.

The project saw the creation of a six-storey multi-unit housing building with business premises constructed from solid stone and overlooking the park. The facade undulates in a series of projecting folds which form bow-windows. The different typologies were designed as a set of spaces for various purposes, much like "a society of parts".

The various intended uses called for the creation of a structure made from a set of different materials, with "the right material in the right place depending on the resources available and the resources supplied, with an appropriate structure for basic uses.".  

The apartments are designed to have a minimum number of load-bearing points, thanks to a regular grid and large span. This principle gives the construction a certain logic, which ensures that the units offer real scalability.

Location

Paris (18th district)

Date

Ongoing

Development

62 multi-unit housing units and business premises

Surface area

4 463 sq. m

Budget

€12 100 000 Excluding tax

Client

Giboire

01_chapelle-charbon
02_chapelle-charbon
03_chapelle-charbon
04_chapelle-charbon
05_chapelle-charbon
06_chapelle-charbon
07_chapelle-charbon
08_chapelle-charbon
09_chapelle-charbon
10_chapelle-charbon