Salvador Allende
Salvador Allende

School and Sports Hall Complex in Saint Fons

The Salvador Allende school complex, created for the Saint Fons municipality, lies in the popular, transforming Arsenal district.

Read more

School and Sports Hall Complex in Saint Fons

The Salvador Allende school complex, created for the Saint Fons municipality, lies in the popular, transforming Arsenal district.

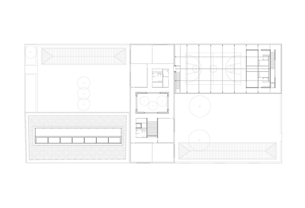
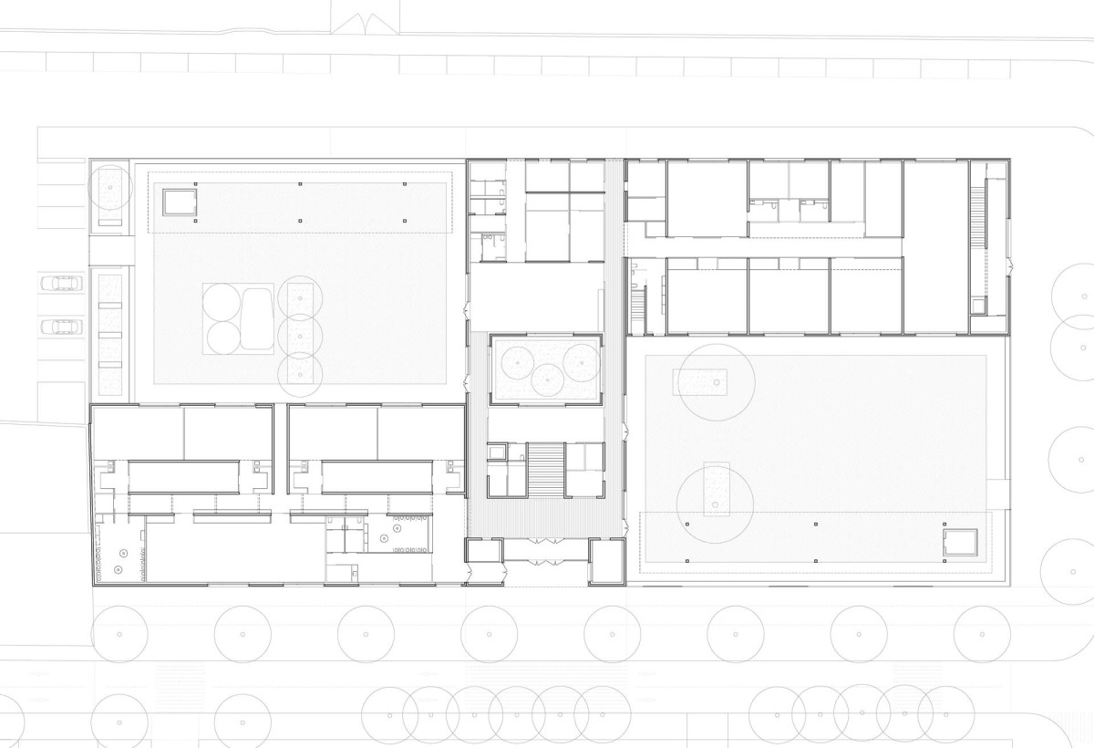
The development consists of three distinct elements:

— To the west, a ground floor kindergarten provides the transition from the urban environment,

— Services common to the various structures and the elementary school are arranged around a patio in the centre of the building,

— The sports hall to the east includes a separate entrance for residents of the town.

Staggered playgrounds to the north and south of the plot provide continuity with the empty spaces around and avoid any sudden changes in scale.

The mixed timber-and-concrete construction is characterised by smooth facades with no decorative elements. The overall tone of the building has been left uniform to avoid emphasising the heterogenous character of neighbouring constructions.

The light-grey concrete ground floor creates a robust foundation bordering a lively public space. The upper level facades have a timber framework and are clad with vertical wooden slats punctuated with large windows. A monitor roof with clerestory windows lets natural light into the large sports hall.

The interior combines natural architectonic concrete and wood.

Location

Saint-Fons (69)

Date

2013

Development

4 kindergarten classrooms, 6 primary school classrooms,
activity rooms, restaurant, and sports hall.

Surface area

3 178 sq. m

Budget

€6 998 000 Excluding tax

Client

Saint Fons municipality

01_salvador-allende
02_salvador-allende
03_salvador-allende
04_salvador-allende
05_salvador-allende
06_salvador-allende
07_salvador-allende
08_salvador-allende
09_salvador-allende
10_salvador-allende
11_salvador-allende
12_salvador-allende
13_salvador-allende
14_salvador-allende