Amicale Laïque Chapelon
Amicale Laïque Chapelon

Crèche et salle de danse à Saint-Étienne

L’organisation du projet et la disposition des différents éléments du programme mettent de façon claire le bâtiment en relation avec l’espace public. Il s’agit d’un bâtiment ouvert sur la place Jacquard, organisé en trois lanières perpendiculaires à la place :

En savoir plus

Crèche et salle de danse à Saint-Étienne

L’organisation du projet et la disposition des différents éléments du programme mettent de façon claire le bâtiment en relation avec l’espace public. Il s’agit d’un bâtiment ouvert sur la place Jacquard, organisé en trois lanières perpendiculaires à la place :

— La première, au nord, forme une cour d’entrée minérale qui assure la transition entre l’espace public et le bâti ;

— La seconde lanière correspond aux différents éléments de programme et présente pignon sur rue ;

— La dernière lanière, au sud, est un jardin planté de magnolias à fleurs.

Par cette disposition, le projet tente de libérer le plus possible d’espaces extérieurs précieux pour les associations.

À l’échelle du quartier, le projet met en relation la place avec le cœur d’îlot, favorisant des accès latéraux plutôt qu’un rapport frontal. Des grilles à l’image des squares ou des parcs urbains forment la limite avec l’espace public.

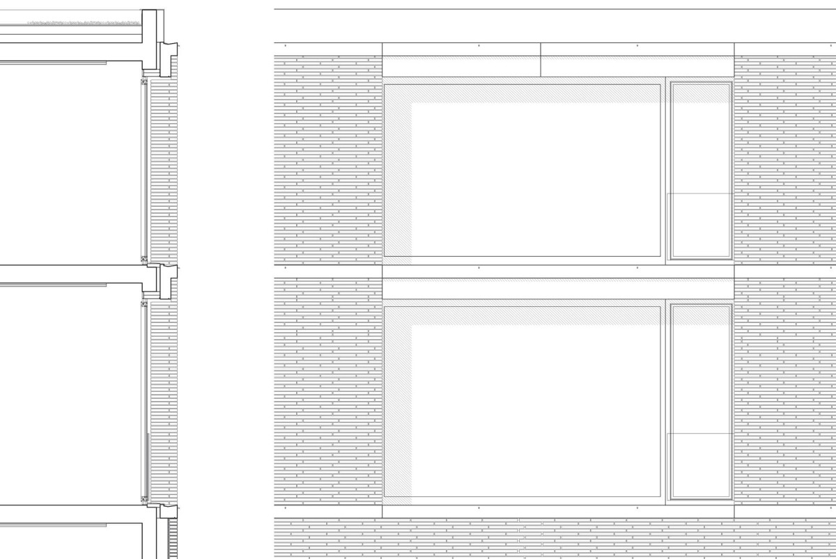
Le programme s’organise sur quatre niveaux, sans toutefois dépasser en hauteur les constructions qui le bordent. Cet équipement identitaire en briques grises est percé de larges baies qui regardent la ville. La réutilisation de ce matériau, qui a fabriqué la ville industrielle de Saint-Étienne, est ici mise en œuvre de manière plus précieuse et intemporelle. Les intérieurs en béton brut sont volontairement neutres, sans couleur, pour laisser la place aux usages à venir.

Lieu

Saint-Étienne (42)

Date

2014

Programme

Amicale Laïque

Surface

1 400 m² SDP

Montant des travaux

2 622 000 € HT

Maître d'ouvrage

EPA Saint-Étienne

01_amicale_laique_chapelon
02_amicale_laique_chapelon
03_amicale_laique_chapelon
04_amicale_laique_chapelon
05_amicale_laique_chapelon
06_amicale_laique_chapelon
07_amicale_laique_chapelon
08_amicale_laique_chapelon
09_amicale_laique_chapelon
10_amicale_laique_chapelon
11_amicale_laique_chapelon
12_amicale_laique_chapelon
13_amicale_laique_chapelon
14_amicale_laique_chapelon
15_amicale_laique_chapelon
16_amicale_laique_chapelon