Îlot Desaix
Îlot Desaix

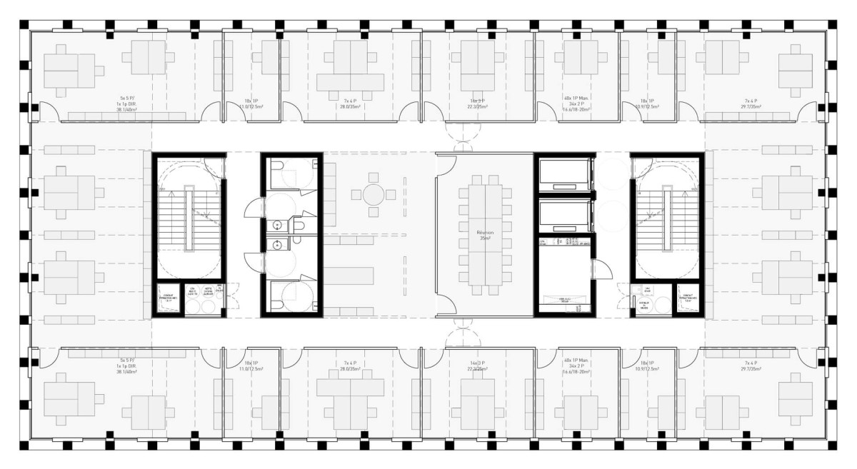
Siège d’Action Logement à La Part-Dieu

Les bureaux d’Action Logement se positionnent le long du boulevard Vivier-Merle, dans la continuité des bâtiments remarquables qui créent le front urbain du quartier de la Part-Dieu.

En savoir plus

Siège d’Action Logement à La Part-Dieu

Les bureaux d’Action Logement se positionnent le long du boulevard Vivier-Merle, dans la continuité des bâtiments remarquables qui créent le front urbain du quartier de la Part-Dieu.

Le nouvel îlot Desaix s’inscrit au cœur d’un patrimoine d’architectes et d’ingénieurs qui a fait école dans le paysage lyonnais. Le siège de la Métropole de Lyon en est le meilleur exemple.

Les bureaux d’Action Logement réintroduisent ce savoir-faire par une typologie « brutaliste » qui exprime sur le même plan structure et architecture. La grille et les éléments verriers de remplissage forment une enveloppe épaisse contrastée, qui réagit aux conditions extérieures par un jeu d’ombre et de lumière.

Le squelette structurel du bâtiment n’est pas uniquement la résolution technique des contraintes statiques, mais participe pleinement à l’expression visuelle de sa représentation.

Lieu

Lyon (69)

Date

2018

Programme

Logements, bureaux et commerces

Surface

19 250 m² SDP

Montant des travaux

34 650 000 € HT

Maître d'ouvrage

Bouygues Immobilier

Associés

Atelier Christian de Portzamparc, 51N4E

01_ilot-desaix
02_ilot-desaix
03_ilot-desaix
04_ilot-desaix
05_ilot-desaix
06_ilot-desaix
07_ilot-desaix
08_ilot-desaix
09_ilot-desaix
10_ilot-desaix
11_ilot-desaix
12_ilot-desaix
13_ilot-desaix
14_ilot-desaix
15_ilot-desaix
16_ilot-desaix
17_ilot-desaix
18_ilot-desaix