Construction en pisé à Lyon Confluence
Une portion de ville en nuances, l’identité lyonnaise en mémoire. 
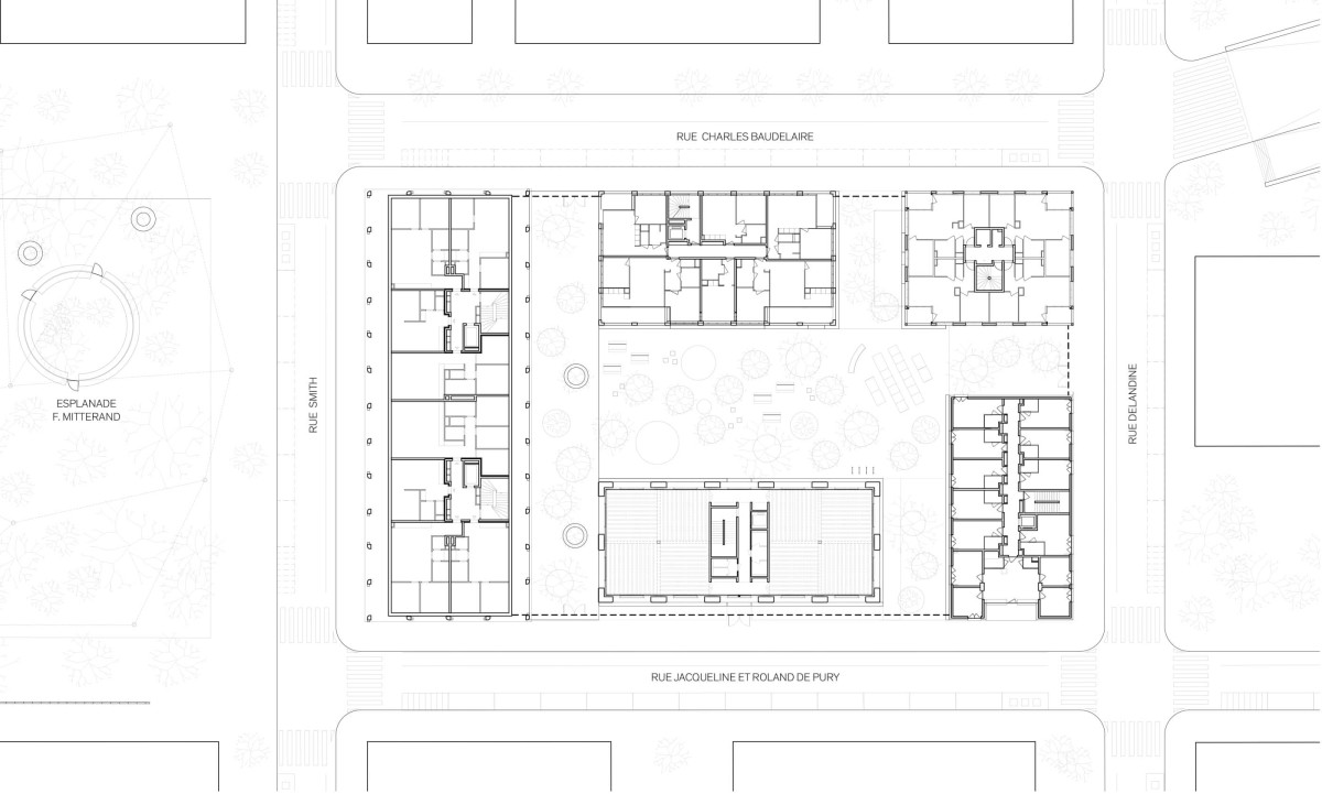
Le projet s’inscrit sur la place centrale du nouveau quartier du Marché d’Intérêt National. L’unité des différents immeubles s’établit en nuances, selon trois postures clairement identifiables :
Construction en pisé à Lyon Confluence
Une portion de ville en nuances, l’identité lyonnaise en mémoire.
Le projet s’inscrit sur la place centrale du nouveau quartier du Marché d’Intérêt National. L’unité des différents immeubles s’établit en nuances, selon trois postures clairement identifiables :
— Au premier plan, le grand bâtiment de l’esplanade François Mitterrand se présente comme l’édifice statutaire. C’est un immeuble entièrement réversible, dont les plateaux peuvent accueillir des bureaux ou des logements, à l’image des hôtels de rapport du XIXe siècle.
 
— Au centre de l’îlot, l’Orangerie se réfère à la constellation de bâtiments de faible hauteur constituée de constructions conservées du Marché d’Intérêt National qui occupait le site. Elle se distingue des autres constructions par sa mise en œuvre en pisé traditionnel. Le bâtiment adopte ainsi un procédé constructif régional, entièrement recyclable. Les planchers en bois massif sont portés par des murs en terre crue préfabriquée formant 14 arches en chaînette. C’est le premier immeuble réalisé en pisé dans Lyon depuis 1856. 
— En arrière-plan, trois immeubles dessinent les « pièces de résistance » en continuité du tissu urbain historique, en prolongeant la mémoire d’une écriture lyonnaise.
Par l’adoption d’une stratégie structurelle forte, habiter et travailler deviennent des fonctions réversibles, adaptables et complémentaires.
Lyon (69)
2021
181 logements, un immeuble de bureaux et une crèche
12 040 m² SDP
20 600 000 € HT
OGIC
Diener & Diener Architekten, Michel Desvigne
 
                     
                     
                     
                     
                     
                     
                     
                     
                     
                     
                     
                     
                     
                     
                     
                     
                     
                     
                     
                     
                    