Avenue de l’Observatoire
Avenue de l’Observatoire

Student Accommodation and Halfway House in Paris

The Avenue de l’Observatoire is part of a major axis in Paris, running from the Palais du Luxembourg to the Paris Observatory. The avenue is symmetrical, fringed by side streets, and bordered by a double row of chestnut trees. The urban character of its row of street-facing stone facades contrasts with the planted garden of the Monastère de la Visitation (Monastery of the Visitation) in the centre of the block.

Read more

Student Accommodation and Halfway House in Paris

The Avenue de l’Observatoire is part of a major axis in Paris, running from the Palais du Luxembourg to the Paris Observatory. The avenue is symmetrical, fringed by side streets, and bordered by a double row of chestnut trees. The urban character of its row of street-facing stone facades contrasts with the planted garden of the Monastère de la Visitation (Monastery of the Visitation) in the centre of the block.

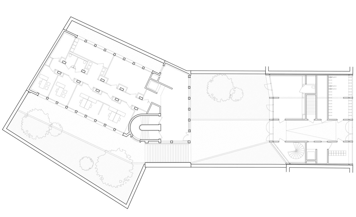
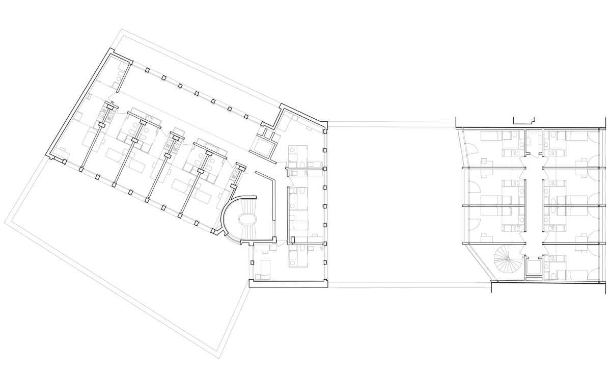
Located at 26 Avenue de l’Observatoire, the plot was originally home to two buildings:

— The first looked onto the avenue and dated to 1863. It was of no interest in terms of heritage, so it was demolished and replaced with student accommodation.

— The second building faced onto the courtyard and was built in 1960. It had undeniable qualities, so it was renovated to house the halfway house and CASVP (City of Paris Centre for Social Action) agency.

The final development included two distinct buildings, one looking onto the avenue and the other onto the courtyard, and a central garden that structured the empty space.

On the avenue, the sober architecture of the student accommodation building provides continuity with the Observatory’s urban facade.

The pre-existing building in the courtyard, which now houses the agency and halfway house, was restored to its original character. To preserve the beautiful decorative elements on the facades, internal insulation was chosen. The light tones of the halfway house dialogue with the neighbouring buildings.

Two successive planted courtyards lie between the buildings. Accessed by a carriage passageway and stone staircase, the garden-courtyards bring a note of freshness to the heart of the development. 

Location

Paris (14th district)

Date

2020

Development

47 student accommodation units and halfway house with 35 units

Surface area

2 930 sq. m

Budget

€5 200 000 Excluding tax

Client

Paris Habitat

01_avenue-de-l-observatoire
02_avenue-de-l-observatoire
03_avenue-de-l-observatoire
04_avenue-de-l-observatoire
05_avenue-de-l-observatoire
06_avenue-de-l-observatoire
07_avenue-de-l-observatoire
08_avenue-de-l-observatoire
09_avenue-de-l-observatoire
10_avenue-de-l-observatoire
11_avenue-de-l-observatoire
12_avenue-de-l-observatoire
13_avenue-de-l-observatoire
14_avenue-de-l-observatoire
15_avenue-de-l-observatoire