Hôtel de Nice
Hôtel de Nice

Social housing in Perrache, Lyon.

The development’s plot is at the corner of two public spaces in Lyon of major historic importance: Cours de Verdun (a road), and Place Carnot (a large square). The Hôtel de Nice was built here in 1863. The construction of the Perrache multimodal hub brought major change to the area in 1976.

Read more

Social housing in Perrache, Lyon.

The development’s plot is at the corner of two public spaces in Lyon of major historic importance: Cours de Verdun (a road), and Place Carnot (a large square). The Hôtel de Nice was built here in 1863. The construction of the Perrache multimodal hub brought major change to the area in 1976.

The design preserves the architectural homogeneity of the urban area by creating a new structure in continuity with the existing buildings.

Its outer walls are the same height and style as the existing facades. The ground floor is characterised by vertical windows, a reinterpretation of typical Lyon footings made of Villebois stone. The top floor, which would traditionally be fitted with dormer windows, features hollowed spaces here.

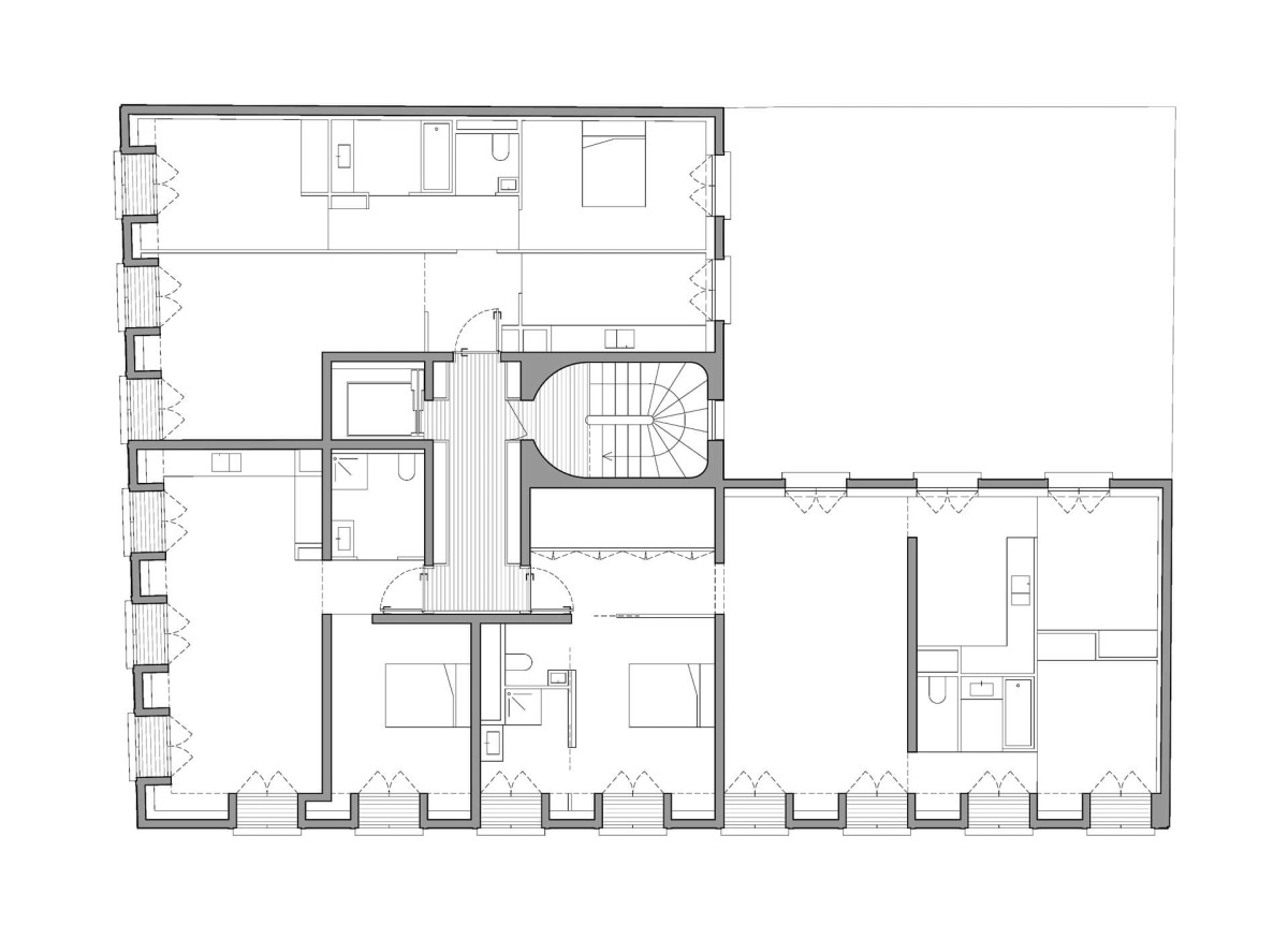
A double-window system, inspired by classical architecture, has been created for the windows overlooking Place Carnot and Cours de Verdon. The system gives the apartments acoustic and thermal insulation. The double-window system features a single-glazed window on the outside and a double-glazed window on the inside. Between them is a watertight, unheated space that can easily be appropriated by residents. Shutters or blinds are fitted between the two sets of windows. This system makes the outer walls so thick that shelving can put between each set of windows in the living areas and wardrobes can be fitted in the bedrooms.

On the ground floor, a large passageway links the front door to the inner courtyard. This unheated space, similar to historic carriage entrances, gives the building’s entrance an added dimension. The space contains the letterboxes and access points to the vertical circulation systems. The large staircase to the upper levels is lit by oval windows and topped with a glass canopy.

The dimensions, proportions, and design of this small building reinterpret themes found in historic rental buildings (immeubles de rapport) by introducing the uses and comforts available in modern housing today.

Location

Lyon (69)

Date

2018

Development

22 multi-unit housing units

Surface area

1 636 sq. m

Budget

€2 300 000 Excluding tax

Client

HMF - 3F

01_hotel-de-nice
02_hotel-de-nice
03_hotel-de-nice
04_hotel-de-nice
05_hotel-de-nice
06_hotel-de-nice
07_hotel-de-nice
08_hotel-de-nice
09_hotel-de-nice
11_hotel-de-nice
12_hotel-de-nice
13_hotel-de-nice
14_hotel-de-nice
15_hotel-de-nice
16_hotel-de-nice
17_hotel-de-nice