École Saint-Fortunat
École Saint-Fortunat

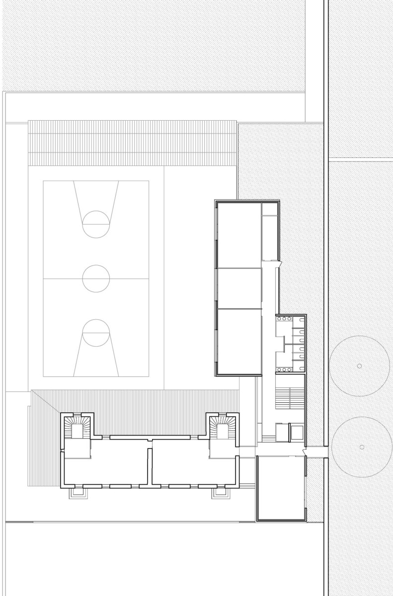
Saint-Didier-au-Mont-d’Or Primary School

The Saint-Fortunat hamlet is on a site marked by the presence of old quarries. The school is at the bottom of a small valley and its playground, an adjacent square, is an excavated area that alters the natural geography. 

Read more

Saint-Didier-au-Mont-d’Or Primary School

The Saint-Fortunat hamlet is on a site marked by the presence of old quarries. The school is at the bottom of a small valley and its playground, an adjacent square, is an excavated area that alters the natural geography. Stone retaining walls, extending on from the vertical inland cliff (the former quarry face), highlight a system of planted terraces that form a series of successive platforms. This configuration creates a landscape whose characteristics have been shaped by human hands over time.

The extension, through the nature of its situation and architecture, follows the logic of the site: it extends the system of platforms and highlights the stone walls and their historic value in understanding the space.

The new construction does not obstruct the views from the upper terrace. Instead, it adds to them visually by freeing up the stone wall and completing the view by its very nature. Its living roof provides visual continuity with the terraced gardens.

The outer walls are clad with stone, recalling the old building, the houses in Saint-Fortunat, and the dry stone techniques used on the site’s walls.

The new building seems to mediate between the landscape’s infrastructure and its built environment.

The extension fits into the space between the school and the wall, leaving only a narrow gap between the two buildings where the entrance is found. Towards the rear, the new building is set apart to avoid any need for underpinning and create a new, accessible patio terrace linked to the path leading to the quarries.

Location

Saint-Didier-au-Mont-d'Or (69)

Date

2006

Development

Primary School (extension)

Surface area

800 sq. m

Budget

€1 129 000 Excluding tax

Client

Saint Didier au Mont d'Or Commune (local authority)

01_saint-fortunat
02_saint-fortunat
03_saint-fortunat
04_saint-fortunat
05_saint-fortunat
06_saint-fortunat
07_saint-fortunat
08_saint-fortunat